Zum Hauptinhalt springen Zur Suche springen Zur Hauptnavigation springen

Bis zu 10 Jahre Produktgarantie

Aufmaß- und Montageservice für Duschen

10 Jahre Nachkaufgarantie

Hersteller mit eigener Produktion

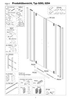
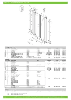
Produktinformationen "MK580 Pendeltür für Nische und Seitenwand"

  • 8 mm Sicherheitsglas
  • verchromter Beschlag, innen flächenbündig für eine einfache Reinigung
  • extra großer Duschbereich
  • integrierter Hebe-Senkmechanismus für leichtes Öffnen und Schließen der Türen
  • Türöffnung nach innen und außen
  • großer Einstiegsbereich

 

Technische Informationen

  • der Drehpunkt liegt fix bei 105 mm von der Wandseite und ist nicht frei wählbar
  • erforderliche Raumhöhe = Produkthöhe zzgl. 50 mm
  • notwendige Beckenrandbreite = 50 mm. Die Wanne darf keinen Wulst aufweisen

 

Maß Maß-Typ Türbreite Produktmaß Wanneneinbaumaß Einstiegsbreite

Höhe 

800 003 695 780-820 780-820 535 2000
900 004 795 880-920 880-920 635 2000
1000 005 895 980-1020 980-1020 735 2000
Sondermaß 099   780-1600     max. 2200

Maßangaben in mm.

 

Farben, Gläser & Größen

Eigenschaft Werte
Abtrennungsart: Nische
Farbe: Alu chromeffekt, Schwarz matt
Glas: DualPlus Klarglas, Intima, Klarglas hell, Mastercarre, Satiniert, Terrazzo, grau getönt
Glasstärke: 8 mm
Maß: 800 mm, 900 mm, 1000 mm, Sondermaß
Serienname: MK 580
Türsystem: Pendeltür
Produktgalerie überspringen

Zubehör

Duschrückwand Dekor Beton anthrazit
Dekor Paneele in verschiedenen Dekoren
Typ: 5788 Serie: 5788
  • fugenfrei und pflegeleicht
  • 3 mm starke Aluminium Verbundplatte 
  • Verschiedene Montagearten möglich 
  • 10 Jahre Garantie
MK 150 Kopfbrause eckig mit Thermostat, Chrom
MK 150 Kopfbrause eckig mit Thermostat
Typ: 5809
  • Eckige Kopfbrause mit Einhebelmischer 
  • Kippbare Kopfbrause
  • Verchromtes Messinggrundgestell
  • Umsteller zwischen Hand- und Kopfbrause
5857_MK-plan-Steinoptik_Quadratduschwanne_weiss
MK plan Steinoptik, Quadratduschwanne
Typ: 5857 Serie: MK plan S
  • formstabile Mineralgusswanne
  • besondere Schallschutzdämmung
  • Traglast der Wannenfüße 200 kg 
  • 10 Jahre Produktgarantie 
Produktgalerie überspringen

Ähnliche Artikel

MK580 Pendeltür für Seitenwand oder Badewannenseitenwand
MK580 Pendeltür für Seitenwand oder Badewannenseitenwand
Typ: 5294 Serie: MK580
  • 8 mm Sicherheitsglas 
  • extra großer Duschbereich
  •  integrierter Hebe-Senkmechanismus 
  • Türöffnung nach innen und außen