Haben Sie Fragen zu diesem Artikel?
Dann nehmen Sie doch einfach mit uns Kontakt auf!
+49 (0) 2631 8607 9980
info@duschwelten.deOder bestellen Sie als Fachhändler direkt in unserem Online-Bestellsystem!
Zum Händler-Login
Ihre Vorteile mit Händler-Login:
- Direkte online Bestellung der Ware
- Einsehen der Preise & Händlerkonditionen
- Persönlicher & direkter Mitarbeiter-Support
Produktnummer:
6047001001040
Bis zu 10 Jahre Produktgarantie
Aufmaß- und Montageservice für Duschen
10 Jahre Nachkaufgarantie
Hersteller mit eigener Produktion
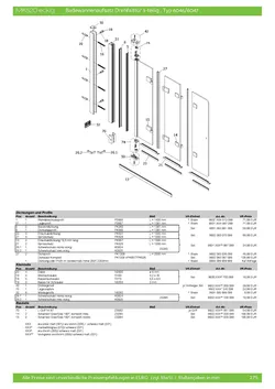
Produktinformationen "MK 520 eckig Badewannenaufsatz Drehfalttür 3-teilig, eckig, Anschlag rechts"
- NEU! Die Serie MK 520 lässt Sie zwischen eckförmig moderner oder klassich runder Profilgeometrie wählen
- 6 mm Sicherheitsglas
- besonders filigranes Design für maximale Transparenz
- eckiges Profil
- Türelemente lassen sich komplett an die Wand klappen
- Türöffnung nach innen und außen
- Anschlag rechts (auch erhältlich mit Anschlag links: Typ 6046)
- Badewanne kann als Dusche genutzt werden
- Sie wünschen abgerundete Profile und Griffe? Schauen Sie bei Typ 6099 vorbei!
| Maß | Maß-Typ | Produktmaß | Höhe |
| 1200 | 040 | 1180-1200 | 1400 |
| Sondermaß | 099 | 560-1200 | max. 1600 |
Maßangaben in mm.

Downloads
Montageanleitungen
Weitere Downloads
Farben, Gläser & Größen
| Eigenschaft | Werte |
|---|---|
| Abtrennungsart: | Badewannenaufsatz |
| Farbe: | Alu Silber matt, Alu chromeffekt, Schwarz matt |
| Glas: | Bella C, Bronce getönt, DualPlus Klarglas, Intima, Klarglas hell, Mastercarre, Satiniert, Spiegelglas, Terrazzo, grau getönt |
| Glasstärke: | 6 mm |
| Maß: | 1200 mm, Sondermaß |
| Serienname: | MK 520 |
| Türsystem: | Drehfalttür |